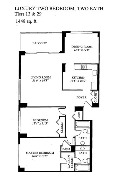
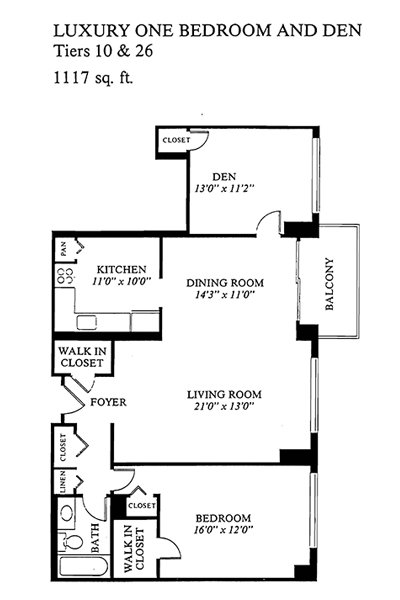
The Promenade offers eight different floor plans. Please note that units may have been renovated or combined, and these floor plans may not be an accurate depiction of actual units.